Home 2D Art 3D Art Projects About

Projects

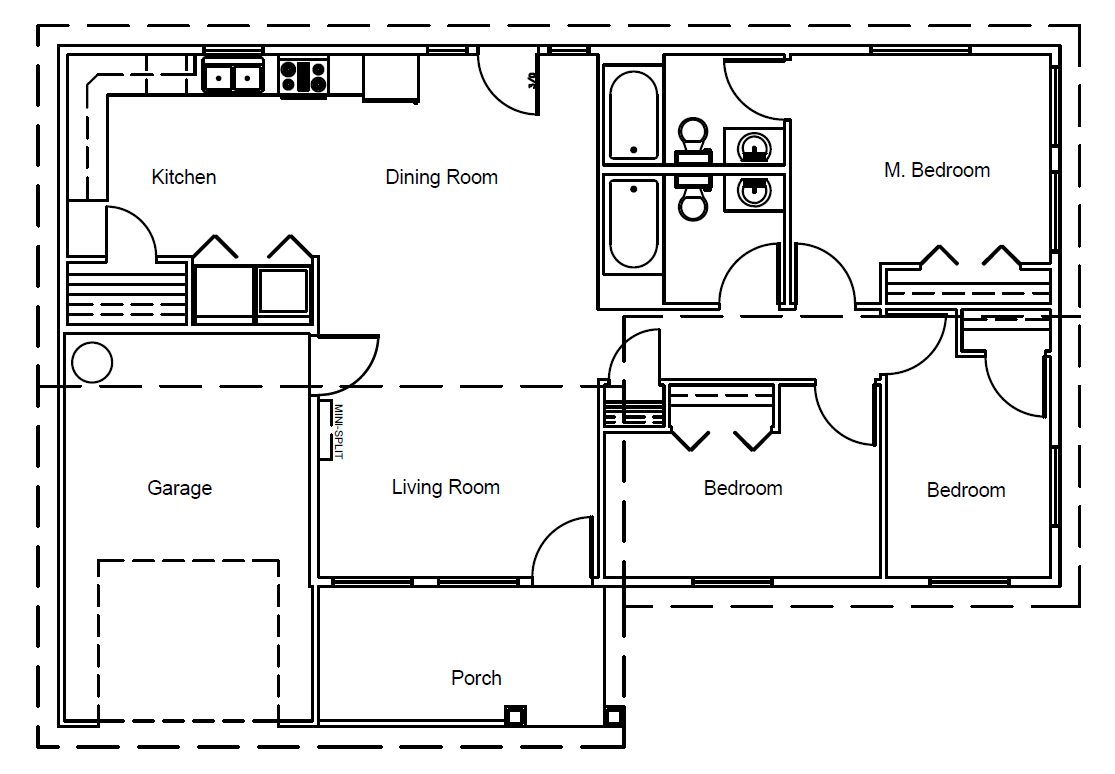
Habitat for Humanity

2020

Drafting and Design II: Students worked in teams to design a full set of architectural plans for Habitat for Humanity using specific design criteria. This was the winning entry and will be constructed.

AutoCAD

Tiny House

2019

A 3D architectural render of a Tiny House kitchen. Erin designed this component in a group project.

AutoCAD